売買物件
シェーネルヴォーネン・ジョン芦屋市朝日ヶ丘町
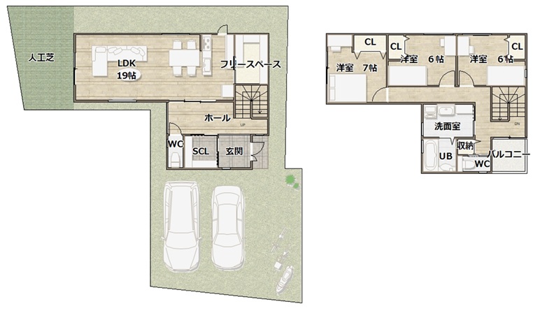
参考プラン
フリープラン:5,980万円
アプローチ、土間リビング、上部吹抜けなど、おしゃれさと便利さを兼ね備えた住宅です。
土間リビング部分はリビング部分と繋がっており、ご自慢の自転車を鑑賞したり、大きな荷物を運ぶ出入り口ともなります。
またLDKの上部は吹抜けになっており、2階部分には大きな窓があるので土間リビングの出入り口と上部吹抜けとを合わせて通風・採光良好な家族団欒のスペースとなっております。
全居室にクローゼットもしくは押入があり、土間リビング、LDK、2階廊下にも収納スペースを配置しているのでお片付けには困りません。
洗面室とバルコニーが隣り合わせなのでお洗濯も楽にできる設計となっております。
またLDKの上部は吹抜けになっており、2階部分には大きな窓があるので土間リビングの出入り口と上部吹抜けとを合わせて通風・採光良好な家族団欒のスペースとなっております。
全居室にクローゼットもしくは押入があり、土間リビング、LDK、2階廊下にも収納スペースを配置しているのでお片付けには困りません。
洗面室とバルコニーが隣り合わせなのでお洗濯も楽にできる設計となっております。
ZEH省エネ基準適合住宅
【フラット35S金利Aプラン対応】
【フラット35S金利Aプラン対応】















